Küche AK1984 - hier beschreiben wir Ihnen die Basiskonfiguration dieser Küchenplanung
Angebot und Konfigurierungsinformationen
- Konfigurieren Sie Ihre Küche ganz nach Ihren Wünschen. Hier zeigen wir Ihnen die Basiseigenschaften dieses Küchenangebot.
- Der Basispreis dieser Küche beträgt 2329.00 €
- Der Basispreis ist ohne Elektrogeräte. Suchen Sie sich einfach die für Sie passenden Elektrogeräte aus unserem Online-Katalog heraus. Selbstverständlich erhalten Sie dieses Küchenangebot auch ohne Elektrogeräte.
- Konfigurieren oder ändern Sie diese Küchenangebot ganz nach Ihren Wünschen. Sehen Sie diese Küchenplanung als Gesprächsgrundlage bzw. Inspiration.
- Alles ist möglich! Reduzieren, erweitern oder ändern Sie diese Küchenkonfiguration ganz nach Ihren Wünschen. Unsere Küchenplaner ändern entsprechend Ihren Angaben dieses Küchenangebot, und Sie erhalten von uns eine individuelle Küchenplanung.
- Das alles bieten wir Ihnen unverbindlich und kostenlos an.
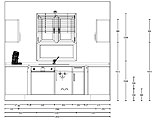
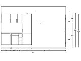
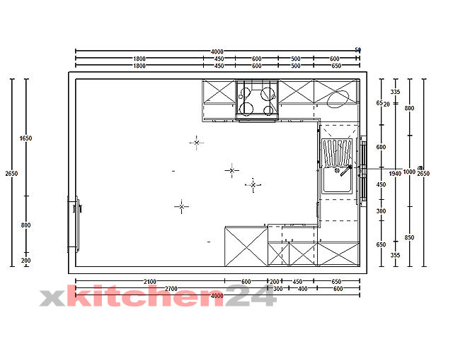
Bilder
Basiskonfiguration dieser Küche
Wandabschlussprofil
- Durch Abschlussprofile werden Schnittkanten optisch abgedeckt, so dass ein sauberer Übergang entsteht, im Spülenbereich ist damit gewährleistet, dass kein Wasser eindringen kann, wahlweise sind diese lieferbar im Arbeitsplattendekor, edelstahlfarbig und aluminiumfarbig, max. Länge ist 500cm
Kühl-Gefrier-Kombination
- Diese Geräte bestehen aus einem Kühlteil und Gefriergerät, das über oder unter dem Kühlteil angeordnet ist. Die Geräte werden meistens mit zwei voneinander unabhängigen Kühlmaschinen betrieben.
Geschirrspüler Vorbereitung
- Diese Küche ist für einen Geschirrspüler vorgesehen. Der Basispreis ist ohne Geschirrspüler. Suchen Sie sich den jeweiligen Geschirrspüler mit dem Elektrogeräteset aus.
- Detallierte Küchenbeschreibung
- Tür für integrierten Unterbau- Geschirrspüler 60 cm 600 x 20 x 579
Eckpassstück 90° Frontausführung 650 x 650 x 724
Spülen-Unterschrank 45 cm 1 Tür, 1 Blende fest 450 x 575 x 724
Unterschrank 50 cm 1 Tür, 1 Schubkasten 500 x 575 x 724
Herdschrank 60 cm für Einbauherd 600 x 575 x 724
Unterschrank 45 cm 1 Tür, 1 Schubkasten 450 x 575 x 724
Unterschrank 30 cm 1 Tür, 1 Schubkasten 300 x 575 x 724
Unterschrank-Eckpassstück 90° 9,5x9,5 cm 650 x 650 x 724
Unterschrank 45 cm 1 Tür, 1 Schubkasten 450 x 575 x 724
Ausgleichs-Unterschrankregal 10-30 cm, 2 Böden lose 200 x 570 x 724
Geräteschrank für integrierte Kühl-Gefrierkombination 60 cm 600 x 575 x 1902
Hängeschrank 60 cm 1 Tür, 1 Einlegeboden 600 x 355 x 580
Hängeschrank-Passstück 10 cm Korpusmaterial/Korpusfarbton 50 x 335 x 580
Hängeschrank 45 cm 1 Tür, 1 Einlegeboden 450 x 355 x 580
Hängeschrank 50 cm 1 Tür, 1 Einlegeboden 500 x 355 x 580
Hängeschrank 60 cm 1 Tür, 1 Einlegeboden 600 x 355 x 580
Hängeschrank 40 cm 1 Tür, 1 Einlegeboden 400 x 355 x 580
Hängeschrank 30 cm 1 Tür, 1 Einlegeboden 300 x 355 x 580
Arbeitsplatte 60 cm einseitig abgerundet Postforming 700 x 600 x 40
APL 4 cm - Eckverbindung mit Nut und Feder gefräst 0 x 0 x 0
Arbeitsplatte 60 cm einseitig abgerundet Postforming 2050 x 600 x 40
APL 4 cm - Eckverbindung mit Nut und Feder gefräst 0 x 0 x 0
APL 4 cm - Eckverbindung mit Nut und Feder gefräst 0 x 0 x 0
Arbeitsplatte 60 cm einseitig abgerundet Postforming 2220 x 600 x 40
APL 4 cm - Eckverbindung mit Nut und Feder gefräst 0 x 0 x 0
Wandabschlussprofil 500 cm 5000 x 30 x 40
Wandabschlussprofil 300 cm 3000 x 30 x 40
Wandabschlussprofil APL-Design Zubeör-Set 20 x 0 x 0







