Küche AK0220 - hier beschreiben wir Ihnen die Basiskonfiguration dieser Küchenplanung
Angebot und Konfigurierungsinformationen
- Konfigurieren Sie Ihre Küche ganz nach Ihren Wünschen. Hier zeigen wir Ihnen die Basiseigenschaften dieses Küchenangebot.
- Der Basispreis dieser Küche beträgt 1120.00 €
- Der Basispreis ist ohne Elektrogeräte. Suchen Sie sich einfach die für Sie passenden Elektrogeräte aus unserem Online-Katalog heraus. Selbstverständlich erhalten Sie dieses Küchenangebot auch ohne Elektrogeräte.
- Konfigurieren oder ändern Sie diese Küchenangebot ganz nach Ihren Wünschen. Sehen Sie diese Küchenplanung als Gesprächsgrundlage bzw. Inspiration.
- Alles ist möglich! Reduzieren, erweitern oder ändern Sie diese Küchenkonfiguration ganz nach Ihren Wünschen. Unsere Küchenplaner ändern entsprechend Ihren Angaben dieses Küchenangebot, und Sie erhalten von uns eine individuelle Küchenplanung.
- Das alles bieten wir Ihnen unverbindlich und kostenlos an.
Bilder
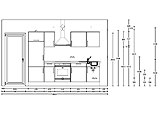
Basiskonfiguration dieser Küche
Wandabschlussprofil
- Durch Abschlussprofile werden Schnittkanten optisch abgedeckt, so dass ein sauberer Übergang entsteht, im Spülenbereich ist damit gewährleistet, dass kein Wasser eindringen kann, wahlweise sind diese lieferbar im Arbeitsplattendekor, edelstahlfarbig und aluminiumfarbig, max. Länge ist 500cm
- Detallierte Küchenbeschreibung
- Geräteschrank 60 cm für integr. Kühlschrank 600 x 575 x 1902
Herdschrank 60 cm für Einbauherd 600 x 575 x 724
Unterschrank 40 cm 1 Tür, 1 Schubkasten 400 x 575 x 724
Unterschrank 60 cm 1 Tür, 1 Schubkasten 600 x 575 x 724
Spülen-Unterschrank 50 cm 1 Tür, 1 Blende fest 500 x 575 x 724
Hängeschrank 40 cm 1 Tür, 1 Einlegeboden 400 x 355 x 580
Hängeschrank 60 cm 1 Tür, 1 Einlegeboden 600 x 355 x 580
Hängeschrank 50 cm 1 Tür, 1 Einlegeboden 500 x 355 x 580
Arbeitsplatte 60 cm einseitig abgerundet Postforming 2120 x 600 x 40
Wandabschlussprofil 300 cm 2120 x 30 x 40
Wandabschlussprofil APL-Design Zubeör-Set 10 x 0 x 0





